RESERVED BY US | Move in and enjoy – renovated village house with perfect floor plan
690.000€



Palma, Balearic Islands, Spain
Price
2.400.000€
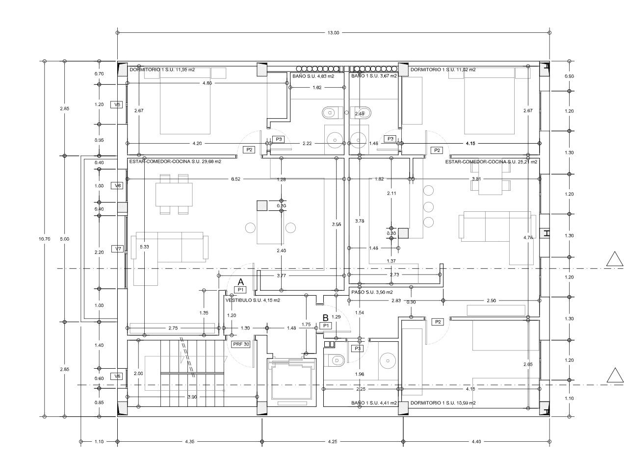
Construction project in top location of Palma de Mallorca
A rare opportunity is available in a sought-after residential area of Palma: a new-build project that has already started and that you can take over and complete. A modern apartment building is planned with 10 high-quality residential units spread over 5 floors, including an elevator, parking spaces and an attractive rooftop terrace.
The shell construction has already started and can be continued independently. A purchase after completion (in approx. 18 months) is also possible by arrangement.
Whether for the sale of individual units or as a long-term capital investment, this project combines location, concept and development potential in an ideal way.
An investment with substance and prospects in a sought-after region of Palma.
We would be happy to provide you with further details on planning, status and completion options – please contact us.
Kosten wie Notar, Grundbuchamt und Kauferwerbssteuern die durch den Erwerb einer Immobilie entstehen, werden vom Käufer getragen. Die Maklercourtage übernimmt der Verkäufer. Alle Angaben beruhen auf den Auskünften des Auftraggebers. LF Real Estate übernimmt keine Gewähr bei Irrtum oder Änderungen. Zwischenverkauf vorbehalten. Trotz unserer Überprüfung der Dokumente, empfehlen wir immer die Beratung eines Anwalt zu nehmen.
Owning a home is a keystone of wealth… both financial affluence and emotional security.
Suze Orman